Luka II
Desarrollo • Costa Azul • Frente
.webp)
- Departamento
- Frente
- 3 amb
- 1 dorm
- 1 baños
- 1 cochera
- 49 m²
Acerca de la propiedad
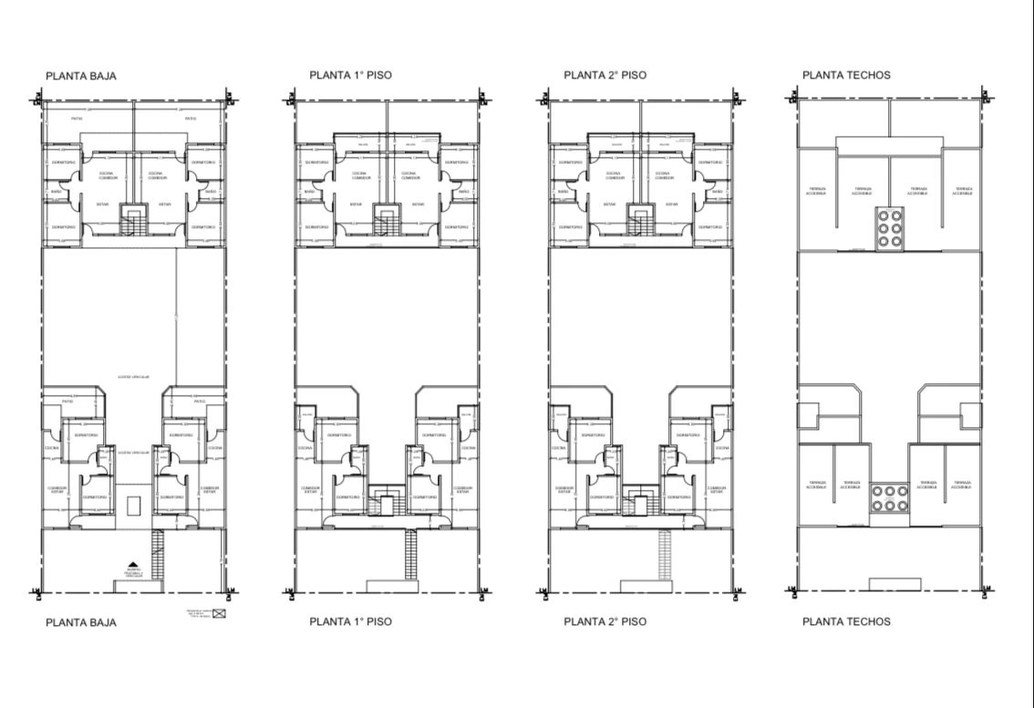
La Rioja 3973 - Costa AzulComplejo LUKA II – Costa Azul Ubicado a solo 3 cuadras del mar y 2 cuadras de la zona comercial de Costa Azul. Frente a calle La Rioja, entre Alberdi y Drago, en un entorno tranquilo y de fácil acceso. Financiación disponible Se acepta permuta vehicular ⸻ Descripción General El complejo está compuesto por 12 unidades funcionales de 3 ambientes, desarrolladas en dos torres: • Torre Frente • Torre Contrafrente Las unidades se distribuyen en tres niveles, ofreciendo excelente funcionalidad y espacios exteriores propios. ⸻ Tipología de Unidades Planta Baja • Living – comedor – cocina integrados • 2 dormitorios • Baño completo • Patio con parrilla y lavadero • Espacio vehicular Primer Piso • Living – comedor – cocina integrados • 2 dormitorios • Baño completo • Balcón con parrilla y lavadero • Espacio vehicular • Terraza Segundo Piso • Living – comedor – cocina integrados • 2 dormitorios • Baño completo • Balcón con parrilla y lavadero • Espacio vehicular • Terraza ⸻ Valores Torre Frente • Planta Baja: U$D 45.000 • Segundo Piso: U$D 39.000 Torre Contrafrente • Planta Baja: U$D 47.000 • Primer Piso: U$D 43.000 • Segundo Piso: U$D 41.000
